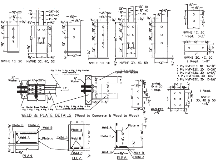
Wood to Wood Truss Hangers NVFHE

Carrier Truss Verticals ALLOWABLE LOADS (lbs.)
Carried Truss 12″ HIGH  16″ HIGH
1 Ply NVFHE1C 2 Ply NVFHE2C 3 Ply NVFHE3C 4 & 5 Ply
NVFHE4C, 5C
1 Ply NVFHE1D 2 Ply NVFHE2D 3 Ply NVFHE3D 4 & 5 Ply
NVFHE4D, 5D
1 PLY
1-2×6
Gravity 2510 2510 5200 5200 4360 4360 8860 8860
Uplift 3520 3520 7380 7380 6510 6510 13350 13350
2 PLY
2- 2×6
Gravity 3755 3755 7288 7288 7070 7070 10372 10372
Uplift 4960 4960 9870 9870 7890 10150 14805 14805
3 PLY
3- 2×6
Gravity 3900 3900 7288 7288 7410 7410 10372 10372
Uplift 5110 5110 9870 9870 7890 1580 14805 14805
4  & 5 PLY
4- 2×8
5-2×8
Gravity 3900 3900 7288 7288 7410 7410 10372 10372
Uplift 5100 5100 9870 9870 7890 10580 14805 14805

NVFHE1C, NVFHE2C, NVFHE3C & NVFHE4C & NVFHE5C-12” high
NVFHE1D, NVFHE2D, NVFHE3D & NVFHE4D & NVFHE5D-16” high.

NVFHE

Weld A: 8” long for 12” high & 10” long for 16” high plates and 1/2” at top.
Weld B: Continuous 3/16″ Fillet.
Weld C: Continuous 3/16″ Fillet.

Plates a: 4″ x 3/16″ x 12″ or 16″
Plate b: (X+½”) x 3/16” x 12” or 16”
Plate c: (X+½”) x 3/16” x 4 3/16”

NVFHE
Carried Truss Verticals
1C, 1D
2 x 4
2C, 2D
2 x 6
3C, 3D
2 x 8
4C, 4D
2 x 8
5C, 5D
2 x 8

vipen

Structural Notes: Wood to concrete and Wood to Wood connectors

1. All designs conforms to 2006/2007 FBC and 2006 IBC and IRC and NDS 2005.
2. 3/16″ thick structural steel shall conform to ASTM A36 yield strength 36000psi. All Bolt holes are 13/16″ diameter.
3. All welding shall be minimum 3/16″ with E70 electrodes and shall conform to latest AISC/AWS codes. All welds shall be fillet welds.
4. All power fasteners wedge bolt anchors shall be manufacturer’s published information. Minimum anchor diameter is 3/4″ and anchor embedment shall be 6″.
5. Uplift values in concrete shown are reduced for bolt spacing and edge distance. Power Fasteners are used without 33% increase in allowable values.
6. All bolt values in wood conform to NDS 2005 for southern pine, G=0.55. Values for other species shall be adjusted as per NDS 2005.
7. Bolts shall not penetrate Truss top and bottom cords and shall only be through Truss Verticals. Bolts thru wood shall conform to section 11.1,2 of NDS 2001 and table 11 G for shear values.
8. This connector shall only be used for wood members loaded parallel to grain.
9. Steel stress is not increased by 33%.
10. Provide plywood shims to close the gap between carried truss and steel connectors to prevent bending of bolts.
11. All products are painted Royal Blue for easy Identification.

WoodtoWood TrussHangersNVFHE

Carried
Truss
Verticals
Allowable Lateral Loads (lbs.)
Carried
Truss
 
12″ High
16″ High
1 Ply
NVFHE1C
2 Ply
NVFHE2C
3 Ply
NVFHE3C
4 & 5 Ply
NVFHE4C, 5C
1 Ply
NVFHE1D
2 Ply
NVFHE2D
3 Ply
NVFHE3D
4 & 5 Ply
NVFHE4D, 5D
1PLY
1 – 2×6
L1
510
865
1135
1730
765
1300
1700
2595
L2
890
1790
2390
2690
1330
2680
3580
4030

2 PLY
2 – 2X6

L1
870
1340
1905
2675
1310
2010
2860
4015
L2
890
1790
2390
2690
1330
2680
3580
4030
3
PLY
3 – 2X8
L1
1055
1546
2295
3095
1585
2320
3440
4640
L2
890
1790
2390
2690
1330
2680
3580
4030

4 & 5 PLY
4 – 2X8
5 – 2X8

L1
1136
1632
1866
3265
1705
2450
3690
4895
L2
890
1790
2390
2690
1330
2680
3580
4030

 

NVFHE1C, NVFHE2C, NVFHE3C, NVFHE4C & NVFHE5C-12″ High
NVFHE1D, NVFHE2D, NVFHE3D, NVFHE4D & NVFHE5D-16″ High

Weld A: 8″ long for 12″ high & 10″ long for 16″ high plates and 1/2″ at top.
Weld B: Continouous 3/16″ Fillet.
Weld C: Continuous 3/16″ Fillet.

Plates a: 4″ x 3/16″x 12″ or 16″
Plate b: (X+½”) x 3/16″ x 12″ or 16″
Plate c: (X+½”) x 3/16″ x 4 ¼”

NVFHE
Carried Truss Veritcals
1C, 1D
2 X 4
2C, 2D
2 X 6
3C, 3D
2 X 8
4C, 4D
2 X 8
5C, 5D
2 X 8

Structrual Notes: Wood to concrete and wood to wood connectors.

1) All design conforms to 2006/2007 FBC and 2006 IBC and IRC AND NDS 2005.
2) 3/16″ thick structural steel shall conform to ASTM A36, yield strength 36000 psi. All bolt holes are 13/16″ diameter.
3) All welding shall be minimum 3/16″ with E70 electrodes and shall conform to latest AISC/AWS codes. All welds shall be fillet welds.
4) All Power Fasteners wedge bolt anchors shall manufacturer’s published information. Minimum anchor diameter is 3/4″ and anchor embedment shall be 6″.
5) Lateral values in concrete shown are reduced for bolt spacing and edge distance. Power fasteners are used without 33% increase in allowable values.
6) All bolt values in wood conform to NDS 2001 for southern pine, G=0.55. Values for other species shall be adjusted as per NDS 2005. Bolts are 3/4″ diameter.
7) Bolts shall not penetrate Truss top and bottom chords and shall only be through Truss Verticals. Bolts thru wood shall conform to section 11.1.2 of NDS 2005 and table 11 G for shear values.
8) This connector shall only be used for wood members loaded parallel to grain.
9) Steel stress is not increased by 33%.
10) Provide plywood shims to close the gap between truss chords and steel connectors to prevent bending of bolts.
11) Lateral loads shall be combined with Uplift loads to satisfy the equation:

uplifttrusscopy

12) All products are painted Royal Blue for easy identification.

vipen

Heavy Welded Connectors Wood to Wood

1 | 2 | 3 | 4 | 5 | 6